Project Specification

 

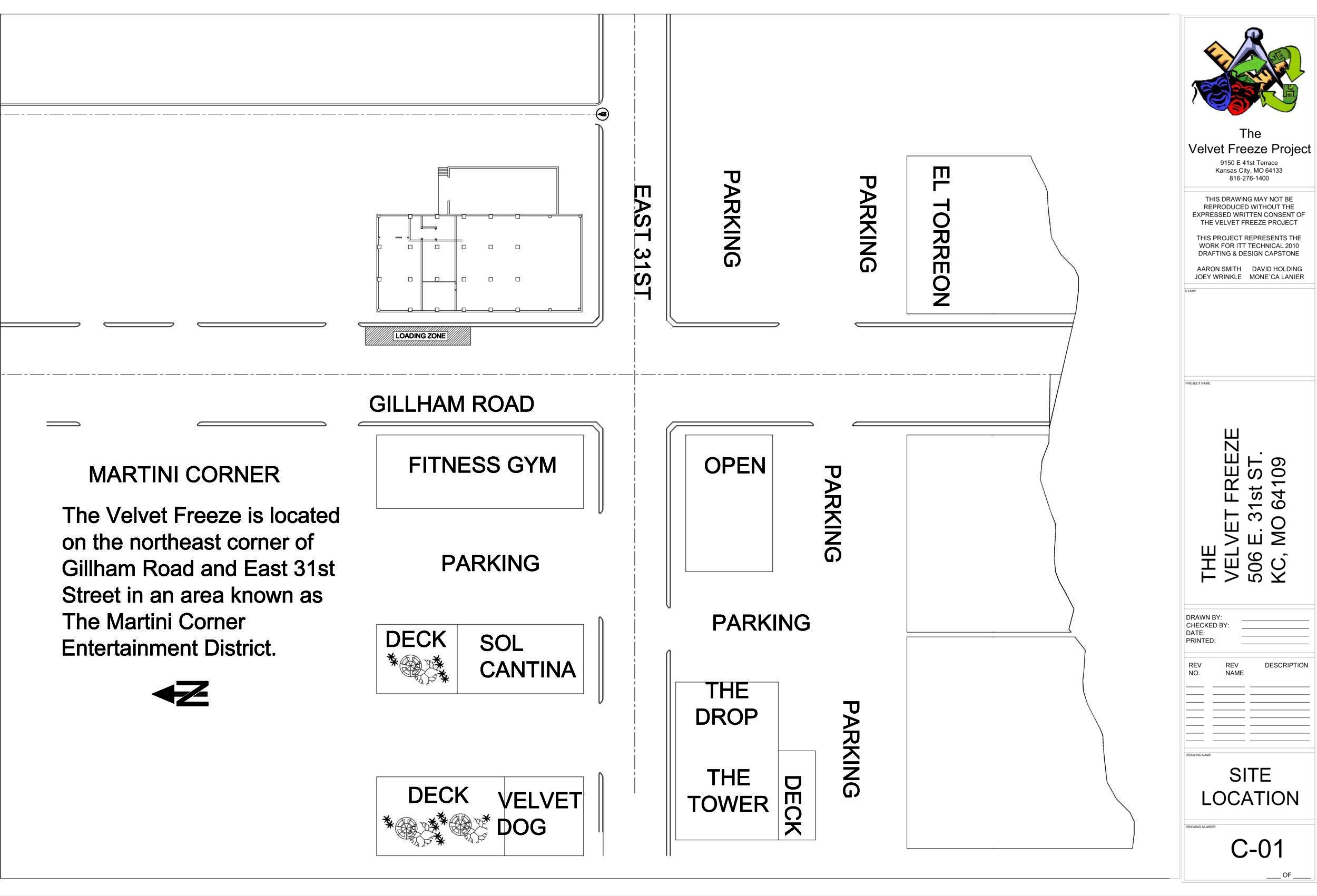
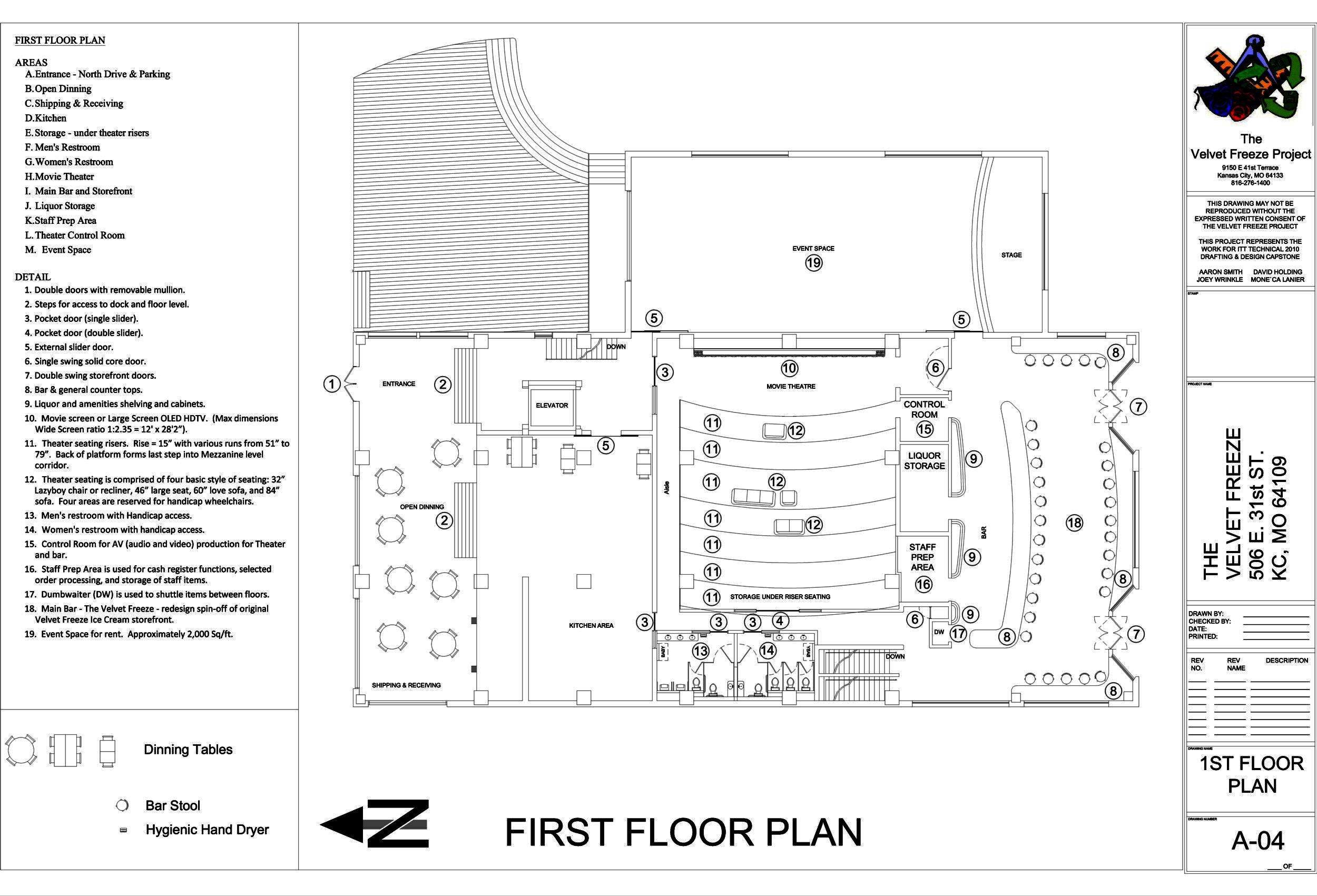
Project Summary The Velvet Freeze Project is a Drafting and Design project to propose a renovation of the building located at 506 E. 31st Street, Kansas City, MO 64109. Originally constructed in 1930 as the Levy Brothers Meat and Provision Company, the building is remembered as the old famous Velvet Freeze Ice Cream Dairy. Located on adjoining lots in the Longfellow Community and adjacent to the historic Union Hill District is a three-story 23,360 square foot building on 0.9 acres. The Velvet Freeze was one of two dairies located on that block.

 

Notes from Client Meeting Prelim-sketches and site visit photos GoogleEarth 3D views from rooftop
EEZ Enhanced Enterprise Zone documents Gillham Row PIEA docuents Longfellow Dutch Hill Development documents
LEED information and spreadsheet GRAF materials LiveRoof - Green Roof materials
NRMCA Pervious Concrete RainXchange material CAD DWG files (zipped) --  Directory of Autocad


 

thm_VELVET-FREEZE-CVR.jpg
384.79 KB 
2001 x 1361 
5/22/2010
384.79 KB
2001 x 1361

PDF CAD
VELVET-FREEZE-CVR.pdf

thm_VELVET-FREEZE-C01.jpg
278.79 KB 
2001 x 1361 
5/22/2010
278.79 KB
2001 x 1361

PDF CAD
VELVET-FREEZE-C01.pdf

thm_VELVET-FREEZE-C02.jpg
249.43 KB 
2001 x 1361 
5/22/2010
249.43 KB
2001 x 1361

PDF CAD
VELVET-FREEZE-C02.pdf

thm_VELVET-FREEZE-C03.jpg
445.40 KB 
2001 x 1361 
5/22/2010
445.40 KB
2001 x 1361

PDF CAD
VELVET-FREEZE-C03.pdf

thm_VELVET-FREEZE-C04.jpg
516.83 KB 
2001 x 1361 
5/22/2010
516.83 KB
2001 x 1361

PDF CAD
VELVET-FREEZE-C04.pdf

thm_VELVET-FREEZE-C05.jpg
449.04 KB 
2001 x 1361 
5/22/2010
449.04 KB
2001 x 1361

PDF CAD
VELVET-FREEZE-C05.pdf

thm_VELVET-FREEZE-A01.jpg
257.44 KB 
2001 x 1361 
5/22/2010
257.44 KB
2001 x 1361

PDF CAD
VELVET-FREEZE-A01.pdf

 

thm_VELVET-FREEZE-A02.jpg
296.80 KB 
2000 x 1361 
5/22/2010
296.80 KB
2000 x 1361

PDF CAD
VELVET-FREEZE-A02.pdf

 

thm_VELVET-FREEZE-A03.jpg
287.79 KB 
2001 x 1361 
5/22/2010
287.79 KB
2001 x 1361

PDF CAD
VELVET-FREEZE-A03.pdf

 

thm_VELVET-FREEZE-A04.jpg
426.14 KB 
2001 x 1361 
5/22/2010
426.14 KB
2001 x 1361

PDF CAD
VELVET-FREEZE-A04.pdf

 

thm_VELVET-FREEZE-A04 (2).jpg
337.54 KB 
2001 x 1361 
5/22/2010
337.54 KB
2001 x 1361

PDF CAD
VELVET-FREEZE-A04 (2).pdf

 

thm_VELVET-FREEZE-A05.jpg
300.19 KB 
2001 x 1361 
5/22/2010
300.19 KB
2001 x 1361

PDF CAD
VELVET-FREEZE-A05.pdf

 

thm_VELVET-FREEZE-A06.jpg
309.61 KB 
2001 x 1361 
5/22/2010
309.61 KB
2001 x 1361

PDF CAD
VELVET-FREEZE-A06.pdf

 

thm_VELVET-FREEZE-A07.jpg
297.82 KB 
2001 x 1361 
5/22/2010
297.82 KB
2001 x 1361

PDF CAD
VELVET-FREEZE-A07.pdf

 

thm_VELVET-FREEZE-A08.jpg
416.90 KB 
2001 x 1361 
5/22/2010
416.90 KB
2001 x 1361

PDF CAD
VELVET-FREEZE-A08.pdf

 

thm_VELVET-FREEZE-A09.jpg
277.64 KB 
2001 x 1361 
5/22/2010
277.64 KB
2001 x 1361

PDF CAD
VELVET-FREEZE-A09.pdf

 

thm_VELVET-FREEZE-A10.jpg
545.85 KB 
2001 x 1361 
5/22/2010
545.85 KB
2001 x 1361

PDF CAD
VELVET-FREEZE-A10.pdf

 

thm_VELVET-FREEZE-A11.jpg
258.80 KB 
2001 x 1361 
5/22/2010
258.80 KB
2001 x 1361

PDF CAD
VELVET-FREEZE-A11.pdf

 

 

 

 

 

 

 

 

 

 

 

 

 

 

 

 

 

 

 

 

 

 

 

 

 

 

 

 

 

 

 



Page Generated by STGThumb